2026-03-20 14:00:26

Spytkowice

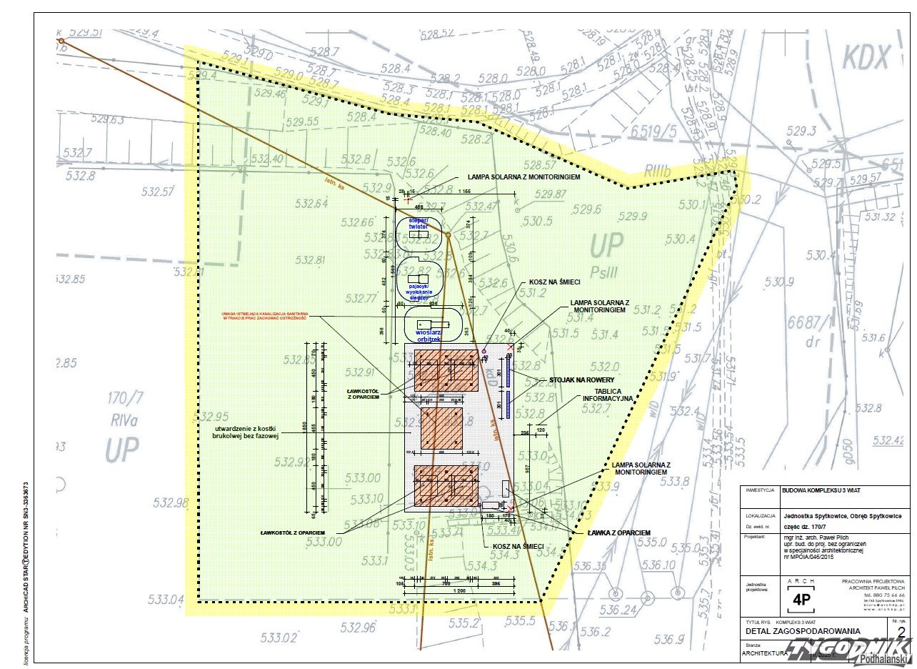
W Spytkowicach powstanie nowoczesna wiata wypoczynkowa dla rowerzystów

Obiekt powstaje w ramach wspólnego zadania z słowackim partnerem - gminą Bobrov.

- W Gminie Spytkowice zostanie wybudowana nowoczesna altana wypoczynkowa dla rowerzystów i turystów korzystających z tras transgranicznych zlokalizowana przy stadionie piłkarskim - informuje wójt Spytkowic Bartosz Leksander. - U partnerów prowadzona będzie budowa wież widokowych w regionie przygranicznym – w gminie Bobrov oraz w mieście Trstená powstaną nowe wieże widokowe, które zaoferują wyjątkowe panoramiczne widoki na krajobraz Orawy oraz przyległe tereny Polski - dodaje. 

Okres realizacji inwestycji to: 01.02.2026 – 31.01.2028, całkowita wartość: 1 225 288,70 €, dofinansowanie z Unii Europejskiej: 980 230,94 €, dotacja z budżetu państwa Republiki Słowackiej: 97 238,91 €, wkład własny partnerów: 147 818,85 €.
opr. mk

Zostań Patronem Tygodnika Podhalańskiego.

Reklama
Komentarze Facebook
Dodaj komentarz
Wysłanie komentarza oznacza akceptację regulaminu komentowania na łamach 24tp.pl
Lolo 2026-03-20 14:35:45
Chwilowy zacinajacy deszcz, burza, itp.
Ta wiata to chyba tylko od silnych promieni slonca .
  • PRACA | dam
    Restauracja Siwy Dym w Rabce-Zdrój zatrudni: KUCHARZA KUCHNI ZIMNEJ ORAZ GORĄCEJ. Praca na stałe lub dorywczo. CV na: rabka@siwydym.pl Informacje pod numerem 887 080 004
  • NIERUCHOMOŚCI | sprzedaż
    DZIAŁKA UZBROJONA W ŁOPUSZNEJ. 506 525 884.
  • SPRZEDAŻ | różne
    DREWNO OPAŁOWE 180 zł/ m3. 790 759 407.
  • SPRZEDAŻ | budowlane
    STEMPLE BUDOWLANE 3 zł/mb. DESKI SZALUNKOWE 750 zł/kubik. KANTÓWKA 980 zł/kubik. 790 759 407.
  • NIERUCHOMOŚCI | wynajem
    Do wynajęcia LOKAL 50 m2 (pod zakład fryzjerski lub pod inna działalność) oraz LOKAL 25 m2 - I piętro - Łapsze Niżne, Delikatesy "Centrum". 504 230 942.
  • PRACA | dam
    Zatrudnimy AGENTÓW NIERUCHOMOŚCI (Podhale/Zakopane). Szukamy osób z doświadczeniem w sprzedaży/marketingu, łatwością w budowaniu relacji i uśmiechem! Oferujemy: stabilne i jasne zasady wynagradzania, wsparcie zespołu oraz przyjazną atmosferę w biurze. Zgłoszenia: biuro@siewierski.pl tel. 506 131 463
  • NIERUCHOMOŚCI | wynajem
    DO WYNAJĘCIA LOKAL HANDLOWO - USŁUGOWO - BIUROWY o powierzchni ok. 50 m2. Zakopane centrum, ul. Kościuszki - 691 124 272.
  • SPRZEDAŻ | różne
    WYPRZEDAŻ WYPOŻYCZALNI NART, pakiety niskie ceny tel. 692001268
  • PRACA | dam
    PRACOWNIKA WYPOŻYCZALNI ROWERÓW Zakopane centrum tel. 692001268 info@fun-time.pl
  • PRACA | dam
    Zatrudnimy STERNIKÓW PONTONOWYCH na Dunajcu tel. 608806030 info@fun-time.pl
  • NIERUCHOMOŚCI | wynajem
    ZAKOPANE - KOŚCIELISKO DO WYNAJĘCIA KOMFORTOWE, WYPOSAŻONE MIESZKANIA 35-38m2. 608 806 408
  • NIERUCHOMOŚCI | wynajem
    DO WYNAJĘCIA MIESZKANIE 38 m2 i 50 m2 W CENTRUM NOWEGO TARGU, UL. KRZYWA, STANDARD DO ZAMIESZKANIA, NOWE, ŚWIEŻE. 608 806 408
  • PRACA | dam
    ZATRUDNIMY W KARCZMIE oraz W BARZE MLECZNYM: KUCHARZA/-KĘ, GRILLOWEGO, DOŚWIADCZONĄ POMOC KUCHENNĄ. Kontakt: 600 035 355 lub osobiście: Zakopane, Droga na Bystre 2A (9-13).
  • PRACA | dam
    STATUS STUDENCKI/ WEEKEND/ 100 zł/h. PRACA EXCEL itp./ +mieszkanie/ micheelkowalski@gmail.com. Zakopane
  • PRACA | dam
    PRACA DLA TYNKARZA LUB BRYGADY NA TYNKI. 535 290 865.
  • PRACA | dam
    Hotel "Foluszowy Potok" Zakopane, ul. Zamoyskiego 42 zatrudni do restauracji hotelowej: KELNERA/-KĘ. Zapewniamy stabilną, całoroczną pracę w restauracji hotelowej. Kontakt wyłącznie telefoniczny: 660 41 00 46
  • PRACA | dam
    Hotel **** w Zakopanem zatrudni KUCHARZA a la Carte tel. + 48 792 276 261
  • PRACA | dam
    Młoda energiczna osoba poszukiwana do pracy na weekendy pod Gubałówką.... szczegoly pod numerem telefonu 781271166.
  • USŁUGI | inne
    WYCINKA, PRZYCINKA DRZEW W TRUDNYCH WARUNKACH - 691 317 098.
  • NIERUCHOMOŚCI | sprzedaż
    ZAKOPANE - STYLOWY DOM (zadbany, urządzony), na działce 3000 m, widok na góry - 607 506 428.
  • NIERUCHOMOŚCI | wynajem
    Do wynajęcia MIESZKANIE 80 m2 - Szaflary. 660 876 537.
  • NIERUCHOMOŚCI | wynajem
    Emerytka szuka DOMU Z OGRODEM do wynajęcia - Nowy Targ i okolice. 575 450 977.
  • PRACA | dam
    PIEKARNIA W ZAKOPANEM ZATRUDNI KIEROWCĘ. Mile widziane doświadczenie. Praca na stałe. 602 759 709
  • PRACA | dam
    Zatrudnię SPRZEDAWCZYNIĘ DO SKLEPU SPOŻYWCZEGO W ZAKOPANEM. 606 115 465.
  • USŁUGI | budowlane
    MALOWANIE DACHÓW I ELEWACJI. 602 882 325.
  • USŁUGI | budowlane
    OGRODZENIA, www.hajdukowie.pl. 692 069 284.
  • SPRZEDAŻ | różne
    DREWNO KOMINKOWE. 501 577 105.
2026-03-20 15:00 Próbował wyrwać torebkę kobiecie w ciąży 2026-03-20 14:51 Kręcone włosy - najczęstsze błędy w pielęgnacji 2026-03-20 14:27 Dziś Droga Krzyżowa w mieście 2026-03-20 14:00 W Spytkowicach powstanie nowoczesna wiata wypoczynkowa dla rowerzystów 1 2026-03-20 13:30 Kolejna taka sytuacja. Kompletnie pijany pojechał samochodem na zakupy do sklepu 2026-03-20 13:00 Zabrzmiały dźwięki dud! (ZDJĘCIA, WIDEO) 2026-03-20 12:00 Kontrola, protest i emocje. Burza wokół schroniska dla zwierząt 7 2026-03-20 11:00 HSKI znów na szczycie. Mistrzowie Polski szkół narciarskich 2026 obronili tytuł 2 2026-03-20 10:01 Bluzy męskie z kapturem - czy to nadal modny wybór? Sprawdzamy, co noszą mężczyźni w 2026 roku 2026-03-20 10:00 Co robić w weekend w Zakopanem? 2026-03-20 09:31 Blogerka recenzuje kolageny - te opinie mogą Cię zaskoczyć! 2026-03-20 09:30 Górale pienińscy na targach w Poznaniu 2026-03-20 09:01 Legalna praca opiekunki: 5 pułapek w umowach, których musisz unikać 2026-03-20 08:59 Organizatorzy protestu krytycznie o stanowisku samorządów w sprawie schroniska 6 2026-03-20 08:31 Pierwszy dzień wiosny na Podhalu. Krokusy coraz śmielej wychodzą na hale 2026-03-20 08:00 Poznaj historię niezwykłych ludzi z Orawy (WIDEO) 2026-03-19 21:31 Druga Noc Sów w Rabce-Zdroju 2026-03-19 21:00 Gorczański park zamyka na noc szlaki turystyczne 2026-03-19 20:00 Jak Tatrzański Park Narodowy i Yellowstone rozwiązują konflikty z niedźwiedziami. Wzór dla Bieszczad 5 2026-03-19 19:18 Pieśń głuszca na Babiej Górze (WIDEO) 2026-03-19 18:59 Burmistrz Czarnego Dunajca nie dostał podwyżki 1 2026-03-19 18:10 Będzie demonstracja w obronie schroniska 6 2026-03-19 18:00 Konkursowy szach i mat 2026-03-19 17:15 Edukacyjne wybory ósmoklasistów. Targi szkół ponadpodstawowych w Zębie 1 2026-03-19 16:43 Kolizja na zakopiance. Tworzą się korki 2026-03-19 16:32 Mandaty za alkohol pod chmurką. Zakopiańska policja przypomina o konsekwencjach 4 2026-03-19 16:00 66. Konkurs Palm Wielkanocnych w Rabce 2026-03-19 15:59 Popularna knajpa znika z tej części Krupówek. Tu szło się, gdy wszystko było zamknięte 7 2026-03-19 15:08 Samorządowcy bronią schroniska w Nowym Targu. Wydali specjalne oświadczenie 5 2026-03-19 14:00 Nocne życie lasu w Nowym Targu. Leśnicy zapraszają na spotkania z sowami 2 2026-03-19 13:59 Ciężarówka uszkodziła nawierzchnię w tunelu na zakopiance 2 2026-03-19 13:30 Wielki powrót na Świętą Górę: No Limit Kasprowy 2026 już 21 marca! 2026-03-19 12:50 Znowu odwiedzili nas goście (WIDEO) 1 2026-03-19 12:00 Targi edukacyjne w Zębie. Młodzież wybiera swoją przyszłość 2026-03-19 12:00 Schody nie do pokonania. Trwa zbiórka dla Krystiana z Harklowej 2026-03-19 11:22 Poranna interwencja zakopiańskich strażaków 2026-03-19 11:20 Ryan Gosling z misją ratowania Ziemi. Mamy dla Was bilety 2026-03-19 10:59 Piękny poranek w Zakopanem. Jak się mają krokusy? (WIDEO) 1 2026-03-19 10:30 Dyskusje o sztucznej inteligencji i przyszłości. Klub Filmowy ruszył w Zakopanem 2 2026-03-19 10:21 Opisz Małopolskę wierszem lub prozą 2026-03-19 10:01 Zamknięty most na Walowej Górze. Zaczyna się remont 3 2026-03-19 09:01 Kolumna informacyjna Urzędu Miasta Zakopane 2026-03-19 08:30 Francuscy rolnicy w Krościenku 1 2026-03-19 08:29 Zostawił walizkę na peronie i poszedł spać 6 2026-03-19 08:00 Turystyka czasu wojny 3 2026-03-18 21:00 Tak po sezonie zimowym wyglądają ławki na Olczy 13 2026-03-18 20:46 Heródek nowocześnie 2026-03-18 20:30 To ważna data dla Pienin 2026-03-18 20:19 Nowi strażacy złożyli ślubowanie 1 2026-03-18 19:42 Narozrabiała, więc policjanci odesłali ją do domu
NAJPOPULARNIEJSZE ARTYKUŁY
NAJCZĘŚCIEJ KOMENTOWANE
OSTATNIE KOMENTARZE
2026-03-20 15:00 1. ludzie po 20 lat czekają na mieszkania socjalne, żyją w pleśni i wilgoci ale my bedziemy sie zastanawiać czy pies je rozwodnioną karme czy moze powinien dostawać łososie i kawior. swiat zwariował 2026-03-20 14:49 2. Lewaki i obrońcy zwierząt i ty @ Zakopianka wam się w głowie już przewraca,pierwsze zagwarantujcie godne warunki Ludziom bezdomnym ,starcom,dzieciom w domu dziecka i osobom co ledwo wiąża koniec z końcem a później bierzcie się za zwierzęta.Rozgonić tą pikietę pod schroniskiem . 2026-03-20 14:35 3. Chwilowy zacinajacy deszcz, burza, itp. Ta wiata to chyba tylko od silnych promieni slonca . 2026-03-20 14:17 4. Dla samorządowców ochrona zwierząt nie ma znaczenia bo liczy się ochrona właściciela schroniska. 2026-03-20 14:07 5. Jesli przez bezczelne oczernianie i nachalna samopromocje widzisz Dogs lepszy los zwierzatek , to twoj wybor. Jednak nie kieruj nas na takie bezdroze ... i pieski tez. 2026-03-20 13:58 6. Falunia. Nie Flunia. 2026-03-20 13:49 7. Ciekawe kto wygra walkę: władze samorządów i powiatów, które chronią właściciela schroniska czy protestujący, którzy są za polepszeniem warunków dla zwierząt? 2026-03-20 13:49 8. . Napruci winem i palacy jakies ziola. Tak Rabczewska rozumie autorow Pisma Swietego. 2026-03-20 13:38 9. Zawiadomiłeś prymitywie prokuraturę, (masz taki obowiązek)< jak nie, to dobierzemy sie do ciebie 2026-03-20 13:36 10. A co to jest ta Flunia ? Ktos sprobuje objasnic w ludzkim wymiarze ?
2026-03-11 08:14 1. Strategia rozwoju... Stawiać jak najwięcej deweloperki, reszta to ch... 2026-03-06 08:53 2. moze zamiast organizować te rozchwytywane i konsultacje miasta uruchomi druga zmiane u w urzedzie dla pracujacych obywateli petentów? 2026-03-06 08:25 3. Chętnie bym się dowiedział jakie studia i na jakich poważnych uczelniach mają ukończone uczestnicy dyskusji. Wprawdzie obowiązuje zasada, że wystarczy chęć szczera ale oni chcą zmarnować nasze pieniądze. Oj tam, oj tam. 2026-02-16 21:51 4. "Na spotkaniu zjawił się burmistrz Łukasz Filipowicz, radni Tymoteusz Mróz, Mateusz Łękawski i mieszkańcy. Ci ostatni niezbyt licznie." A kto miałby się tam pojawić jak spotkanie zorganizowane w godzinach gdzie normalni ludzie pracują a miejsca tam w tej "stacji kultura" było może jeszcze na jakieś 20 osób. Przecież to klita na poddaszu gdzie jest miejsce dla dzieci na zabawy a nie dla 100 czy więcej dorosłych. Przecież to była jawna kpina. Dlaczego spotkanie nie było bardziej komunikowane i nie zapewniono odpowiednio dużej sali? I przede wszystkim dlaczego w godzinach pracy a nie w weekend??? Wywalić miliona na sylwestra potrafią a zmobilizować mieszkańców "nie da się". Widać zależy im żeby przyszło jak najmniej mieszkańców. Boją się usłyszeć to i owo. 2026-02-08 13:18 5. Fajne eksponaty :) 2026-02-04 21:19 6. Nie moje klimaty ani dla uszu ani dla oczu 2026-01-29 15:43 7. Kasia Rysy 2026-01-03 13:15 8. Ładne góalki. 2025-12-29 19:33 9. Znakomity poMYSł panie @jarząbek 2025-12-03 15:38 10. Świetny POmysl, zwłaszcza że w Zakopanem mimo otwartej Gubałówka m.in. przez Pana Szwajcara i czwartego burmistrza G.J. to lepiej na desce windsurfingowej po równiach pojeździć
WARUNKI W GÓRACH
POGODA W WYBRANYCH MIASTACH REGIONU
Reklama